Migração ACL (SMF)
O mercado livre de energia é um ambiente em que consumidores e fornecedores podem negociar contratos de energia elétrica de forma direta, sem a necessidade de adquirir a energia apenas da distribuidora local. Nesse mercado, os consumidores têm mais flexibilidade para escolher fornecedores, negociar preços e condições contratuais, promovendo maior competição e potencialmente resultando em custos mais baixos.
A Migração ACL (Ambiente de Contratação Livre) consiste na entrega das adequações necessárias para interligação do sistema de medição da concessionária.
Realizamos:
Montagem do Painel de medição;
Interligação da infraestrutura ao painel de medição;
ART e solicitação de desligamento junto a concessionária;
Acompanhamento do desligamento para interligação da concessiorária
Energia Solar
Com os constantes aumentos no valor da energia elétrica e degradação da geração nacional a energia solar fotovoltaica vem ganhando a cada dia mais espaço e atenção. Sistemas que a cada dia estão mais viáveis com ótimas condições de financiamento, trazendo bons resultados de eficiência energética e retorno de investimento aos clientes. A DRC antenada com as inovações mundiais traz conhecimento e experiência de mercado para deixar sua residência ou comercio com eficiência energética e segurança.
Venha fazer a simulação gratuita e conhecer nossos serviços.
Realizamos:
-
Projetos;
-
Instalação;
-
Consultoria;
-
Aquisição de Materiais ;
-
Manutenção Preventiva e Limpeza de Painéis.
Grupo Gerador Diesel
Realizamos a manutenção preventiva e corretiva do seu grupo gerador diesel incluindo:
- Manutenção Mecânica;
- Manutenção Elétrica;
- Diagnostico de falha;
- Acompanhamento regular do equipamento;
- Plano de manutenção ajustado conforme sua utilização;
- Entrega de máquinas novas e conexão com a carga do seu empreendimento;
- Dimensionamento e auxilio para compra de seu equipamento;
- Reforma elétrica e montagem de comando;
Somos credenciados pela Maxi Trust Grupos Geradores no Mato Grosso do Sul, isso garante qualidade em nosso serviços e confiança da fábrica em nossa em empresa. Faça com quem entende do negócio!
Projetos elétricos
O projeto elétrico é o detalhamento da instalação elétrica com o correto dimensionamento dos circuitos, cabos, proteções, quadros e componentes elétricos.
Por meio deste conseguimos ampliar:
Planejamento
Segurança
Controle
Realizamos:
Projetos de iluminação;
Projetos do quadro geral de distribuição;
Projetos de quadros de iluminação;
Projetos de pontos de energia para iluminação de emergência;
Projetos de pontos de energia geral e de uso específicos;
Projeto de pontos de alimentação de equipamentos industriais;
Diagramas unifilares e trifilares de quadros de alimentação e comando;
Lista de material detalhada;
Projetos de geração de energia.
SPDA e Aterramento
O brasil é um dos países com maior incidência de descargas atmosféricas.
A instalação dos sistemas de proteção contra descargas atmosféricas (spda) é uma exigência do corpo de bombeiros, regulamentada pela ABNT segundo a norma NBR 5419/2005, e tem como objetivo evitar e/ou minimizar o impacto dos efeitos das descargas atmosféricas, que podem ocasionar incêndios, explosões, danos materiais e até mesmo, risco à vida de pessoas e animais.
A importância deve-se a:
Segurança;
Prevenção;
Atendimento às normas legais;
Realizamos:
Projeto e execução de sistema de proteção contra descargas atmosféricas (SPDA) utilizando:
1) método franklin, porém com limitações em função da altura e do nível de proteção;
2) método gaiola de faraday;
3) método da esfera rolante, eletrogeométrico ou esfera fictícia.
Projeto de malha de aterramento;
Inspeção períodica em spda conforme a NBR 5419;
Laudos e medição de aterramento;
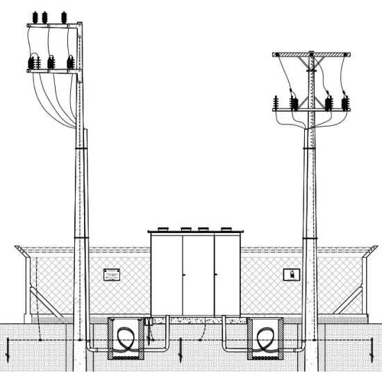
Projeto e Montagem de Subestação
Uma subestação é um conjunto de equipamentos de manobra e/ou transformação, e ainda eventualmente de compensação de reativos usado para dirigir o fluxo de energia em sistema de potência e possibilitar a sua diversificação através de rotas alternativas, possuindo dispositivos de proteção capazes de detectar os diferentes tipos de faltas que ocorrem no sistema e de isolar os trechos onde estas faltas ocorrem.
Em uma indústria ou comércio sua aplicação é fundamental pois o controle do fluxo e distribuição de energia torna as condições ideiais para otimizar o funcionamento do maquinário e evitar percas e danos.
Realizamos:
Levantamento de carga instalada;
Projeto da cabine de transformação;
Estudo de viabilidade econômica;
Lista de materiais detalhada;
Carta de aumento de consumo (quando necessário);
Apresentação do projeto no fornecedor local;
Instalação do posto de transformação;
Ligação no circuito secundário BT;
Supervisão e acompanhamento de instalação de postos de transformação.
Distribuição de energia
O segmento de distribuição se caracteriza como o segmento do setor elétrico dedicado à entrega de energia elétrica para um usuário final.
E tem como foco:
Garantia no fornecimento de energia elétrica;
Adequação às normas vigentes;
Segurança nas redes de Ditribuição.
Realizamos os serviços de:
Distribuição rural;
Distribuição urbana;
Montagem de QGBT
Quadro geral de baixa tensão ou QGBT é um quadro de distribuição elétrico destinado a receber energia elétrica de uma ou mais fontes de alimentação e distribui-las a um ou mais circuitos.
Vital para sua empresa devido:
Segurança elétrica;
Atendimento à NR-10;
Organização;
Seguraça na operação;
Realizamos:
Projeto de quadros de distribuição e comando;
Montagem e instalação de QGBT;
Manutenção e organização;
Retrofiting para adequação NR-10;
Venda de quadros prontos.
Correção de Fator de Potência
Em circuitos de corrente alternada (ca) puramente resistivos, as ondas de tensão e de corrente elétrica estão em fase, ou seja, mudando a sua polaridade no mesmo instante em cada ciclo. Quando cargas reativas estão presentes, tais como capacitores ou condensadores e indutores, o armazenamento de energia nessas cargas resulta em uma diferença de fase entre as ondas de tensão e corrente.
Uma vez que essa energia armazenada retorna para a fonte e não produz trabalho útil, um circuito com baixo fator de potência terá correntes elétricas maiores para realizar o mesmo trabalho do que um circuito com alto fator de potência. A correção do fator de potência através, principalmente, da instalação de capacitores tem sido alvo de muita atenção das áreas de projeto, manutenção e finanças de empresas interessadas em racionalizar o consumo de seus equipamentos elétricos.
Objetivando otimizar o uso da energia elétrica gerada no país, a ANEEL (agência nacional de energia elétrica), através do decreto nº 479 de 20 de março de 1992 estabeleceu que o fator de potência mínimo deve ser 0,92.
Entre os benefícios para sua empresa estão:
Melhoria de tensão
Redução das perdas
Redução no custo de energia
Aumento da capacidade dos equipamentos(transformadores)
Aumento da vida útil das instalações e equipamentos
Aumento da eficiência energética da empresa
Realizamos:
Análise de fator de potência
Dimensionamento de banco de capacitores
Programação de controladores
Montagem de quadros para correção de fator de potência
Instalação de banco de capacitores
Correção na entrada de energia de alta tensão
Correção na entrada de energia de baixa tensão
Correção por grupos de cargas
Correção localizada
Correção mista
Entregamos seu Banco de Capacitores instalado!
NR-10
“Esta NR estabelece os requisitos e condições mínimas objetivando a implementação de medidas de controle e sistemas preventivos, de forma a garantir a segurança e a saúde dos trabalhadores que, direta ou indiretamente, interajam em instalações elétricas e serviços com eletricidade.”
Objetivo desta norma é:
Segurança nas instalações elétricas
Realizamos:
Consultoria
Criação de prontuários
Adequações das instalações
Laudos
NR-12
Esta NR define os princípios fundamentais e medidas de proteção para garantir a saúde e a integridade física dos trabalhadores e estabelece requisitos mínimos para a prevenção de acidentes e doenças do trabalho nas fases de projeto e de utilização de máquinas e equipamentos de todos os tipos, e ainda à sua fabricação, importação, comercialização,
Exposição e cessão a qualquer título, em todas as atividades econômicas.
Objetivo desta norma é:
Segurança em equipamentos
Realizamos:
Consultorias
Montagem de inventários de maquinas
Criação de prontuários
Adequações em equipamentos
Laudos
Termografia e Análise Energética
A termografia é uma técnica que permite mapear um corpo ou uma região com o objetivo de distinguir áreas de diferentes temperaturas, sendo, portanto uma técnica que permite a visualização artificial da luz dentro do espectro infravermelho. A termografia hoje tem um papel muito importante na área de manutenção preditiva. Através da sua utilização, é possível eliminar muitos problemas, evitando falhas elétricas, mecânica, fadiga de materiais e perda de energia por aquecimento e dissipação.
Realizamos análise em diversos segmentos comerciais, como: Hoteis, Supermercados, Centros Comerciais e Edifícios Resitenciais, também possuimos equipe capacitada e habilitada para grandes indústrias e pequenas fábricas.
Vital para sua empresa devido:
Segurança elétrica em suas instalações;
Aumento da eficiência energética da unidade consumidora;
Aumento da vida útil dos equipamentos e instalações;
Seguraça na operação e manutenção;
Realizamos:
- Termografia em motores e bombas;
- Termografia em Quadros de Distribuição;
- Termografia em sistemas de gases comprimidos;
- Termografia em instalações elétricas em geral;
- Termografia em paineis de acionamentos;
- Termografia em Subestações;
Atestado de Conformidade Elétrica
E o documento que atesta as condições elétricas de baixa tensão das edificações por meio de inspeção visual conforme prescrições da norma ABNT NBR 5410.
De grande importância pois:
Garante a segurança das instalações;
Atende às exigências do corpo de bombeiro no quesito segurança de combate à incêndio;
Realizamos:
Atestado de conformidade elétrica
Consultoria
Projeto de combate à incêndio
Projeto spda
Laudo inspeção spda.
Automação
Automação é o processo pelo qual os mecanismos verificam seu próprio funcionamento, efetuando medições e introduzindo correções.
Dentre as vantagens de se automatizar podemos destacar facilmente a:
Repetibilidade e maior qualidade na produção;
Realização de tarefas impossíveis ou agressivas ao homem;
Rapidez de resposta ao atendimento da produção;
Redução dos custos de produção;
Restabelecimento mais rápido do sistema produtivo;
Redução de área de processo;
Possibilidade de sistemas interligados e coparticipativos.
Realizamos:
Automação indutrial
Automação residencial
Criação de supervisórios
Redes Lógicas
A rede lógica e estruturada compreende: pontos de rede físicos, rack’s e equipamentos de acesso a internet como mpls, switch’s, roteadores, servidores, etc…
Itens de grande importância para garantir:
Qualidade na transmissão de dados;
Acesso simultâneo à internet, facilitando o acesso a sistemas com suporte web, envio e recebimento de informações via email e demais serviços disponíveis na internet de modo geral;
Interligação e compartilhamento de arquivos e serviços, como impressão de documentos;
Realizamos:
Projetos de rede;
Especificação de equipamentos;
Montagem de rack’s, painéis e pontos de logica;
CFTV
Circuito fechado ou circuito interno de televisão (também conhecido pela sigla CFTV; do inglês: closed-circuit television, CCTV) é um sistema de televisão que distribui sinais provenientes de câmeras localizadas em locais específicos, para um ou mais pontos de visualização.
Vital importância para:
Garantir a segurança do local;
Monitoramento interno;
Realizamos:
Projeto de CFTV;
Especificação de sistemas;
Instalação de cameras e sistemas de armazenamento de imagens;
Lista detalhada de materiais;